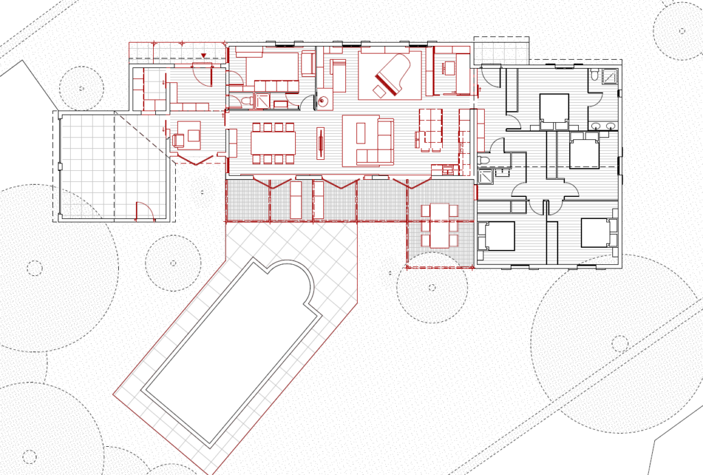
One of the clients is a piano teacher and wanted to keep her teaching room well separated from the rest of the house. The new entrance allows to form a lobby in the house with a direct access to the teaching room and the upright piano reserved for the students, creating an organic separation between public and private while also finding a direct access to the garage from the inside of the house.
Olmes
Pibrac, France, 2023-2024
Transformation d’une maison particulière
Esquisse et Déclaration Préalable pour client privé
Mené par Audrey Mainsant
Opening the plan
The clients wanted to transition to a more open-plan type of living and maximise the presence of light and sun in the living spaces.The driving idea of the project is to open the kitchen to the living spaces. The outdated chimney is moved and replaced by a wood stove to maximise heat production and free the angle of the kitchen. The office is moved to a smaller more enclosed space while all the other spaces open up between themselves and to the outside. The new organisation of the spaces ensures a seamless use for everyday life and for when visitors come over.
Connection to the terrace
After rearranging the plan with only living spaces along the south-facing wall, the project enlarges the existing openings to have a series of three bay windows. The terrace becomes a full part of the living spaces. A pergola protects the house from the sun in summer while allowing the sun to shine through in the winter.
Preserving intimacy
